
睿婕轻钢别墅是一家专注于轻钢别墅设计和建造的公司,提供全面的定制化服务。因此,睿婕轻钢别墅可以根据客户的需求和要求进行个性化的定制设计。

睿婕创始人何友良先生(中间白色衣服)与工作人员合影
定制化设计是指根据客户的特定需求和喜好,为其打造独特的建筑设计方案。睿婕轻钢别墅理解每个客户都有不同的需求和审美偏好,因此致力于提供定制化的设计服务,以满足客户的个性化需求。
定制化设计的优势在于可以根据客户的具体要求进行灵活的调整和创新。以下是一些定制化设计方面的考虑因素:
1、建筑结构
睿婕轻钢别墅可以根据客户的需求和设计意向,调整建筑结构和布局。例如,客户可以选择不同的平面图设计,如单层、双层或复式结构,以满足不同的空间需求和功能要求。

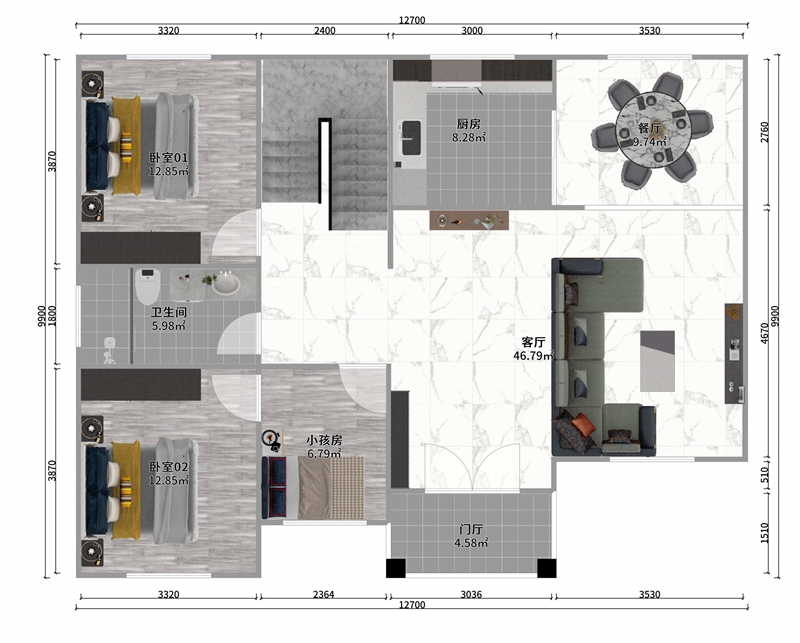
睿婕设计的一层平面图
2、房间布局
客户可以根据自己的喜好和生活方式,定制房间布局。例如,调整卧室、客厅、厨房、浴室等的大小和位置,以适应个人家庭的需求。
3、材料选择
睿婕轻钢别墅可以根据客户的喜好和要求,提供多种不同的建筑材料选择。例如,墙体材料、地板材料、屋顶材料、门窗材料等,可以根据客户的偏好和预算进行个性化选择。

睿婕团队搭建的轻钢别墅
4、内部装饰
睿婕轻钢别墅还可以根据客户的喜好和风格要求进行室内装饰设计。这包括墙壁颜色、地板材料、瓷砖选择、厨房和卫生间的设施等??突Э梢愿葑约旱纳竺佬枨?,选择适合自己的室内设计方案。
5、特殊要求
如果客户有特殊的需求或功能要求,睿婕轻钢别墅可以进行个性化的定制设计。例如,残疾人友好设计、节能环保设计、阳光房或露台等特殊要求,可以与睿婕轻钢别墅的设计团队协商并进行定制设计。
通过与客户的紧密沟通和理解,睿婕轻钢别墅的设计团队将根据客户的要求和指导,提供专业的建议和创意,以实现独特的定制化设计方案。

总结而言,睿婕轻钢别墅提供定制化设计服务,以满足客户的个性化需求和审美偏好??突Э梢愿葑约旱囊?,定制建筑结构、房间布局、材料选择、内部装饰和特殊要求等方面。通过与睿婕轻钢别墅的设计团队合作,客户可以实现独特的、满足个人需求的轻钢别墅设计。